Агенство недвижимости "Аверс"
Контактный телефон:
098-567-64-99
1 280 905 грн. / 30 500 $
ID 453240924



Фото 0 из 4
Цена:
1 280 905uah
(30 500 $)
Описание:
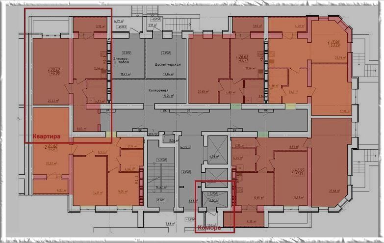
ЖК квартира за адресою Харків, Заливна вул, 8а. Центр міста. Поряд метро(5 хвили), ТРЦ Класс, Набережна. Квартира на першому поверсі з вікнами не на сонячну сторону. Великий передпокій. Оформлено лічильник тепла, є можливість економити на опаленні поки виконуються ремонтні роботи. Додатково є можливість придбання, нежитлового приміщення 5 м. кв. на першому поверсі з виходом на вулицю в цьому ж підїзді. Вже оформлене. Будинок Введено в експлуатацію-Українська цегла, в квартирі 1 кімната. Планування кімнат Роздільне. Немає газу. Гаряча вода-централізована. Опалення центральне. В квартирі є Лічильники. Загальний стан квартири-Від будівельників(з обробкою). Терміново Планування не змінювалося. Від забудовника, як на фото. ЖК Левада-2. Житловий комплекс продовжує будуватись. Метро Пр. Гагарина. ТРЦ Класс. Всі види трансопрту. Квартира в стані від забудовника. Харків, Заливна вул, 8а, Основянський р-н. 1 кімната, 462012 м2, поверх 1 з 16. , 1 кімната, 462012 м2, поверх 1 з 16, Українська цегла, Роздільне, Від будівельників(з обробкою). Єгор.(Власник). Цена 31 500 Тел Продаж квартир в Харківській області(вторинний ринок житла)-сторінка 2 Вн: a1 - 15.12.2023, Кор(вручную): a1 - 15.12.2023 Вн: a1 - 15.12.2023, Кор(вручную): s10 - 15.12.2023 Вн: a1 - 15.12.2023, Кор(вручную): 15008 - 05.01.2024 Вн: a1 - 15.12.2023, Кор(вручную): 15009 - 05.08.2024 Вн: a1 - 15.12.2023, Кор(вручную): 46004 - 28.05.2025 Подробнее об этом объекте на сайте 20.estate
ID 453240924 | 4
Опубликовано: 15.12.2023
На карте:
Похожие объявления
Найдено 15 похожих объявления
