Агенство недвижимости "Аверс"
Контактный телефон:
098-567-64-99
1 423 590 грн. / 33 000 $
ID 453305653



Фото 0 из 4
Цена:
1 423 590uah
(33 000 $)
Описание:
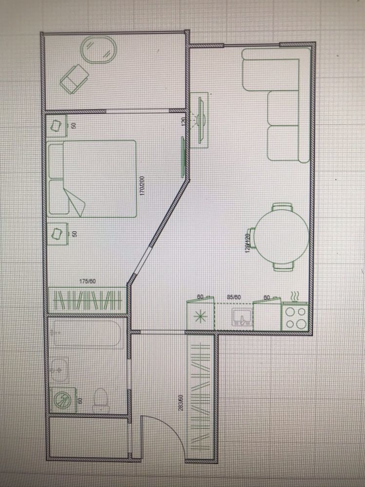
ЖК Победы 2, Хозяин, Алексеевка, еОселя. Цена 33 000 . Количество комнат 1 комн. Общая площадь 48 кв. м. Площадь кухни 15 кв. м. Этаж 3. Этажность 9. Продам СВОЮ квартиру, я Хозяин ! Просторная квартира, можно сделать хорошую двушку студию. Дом сдался в эксплуатацию, соседи делают ремонт. Дом номер 2, стены кирпичные с наружным утеплением стен. Квартира находится 3м этаже 9ти этажного дома. Не торцевая. Вид из окон во двор на 3-й дом и лес. Общая площадь квартиры-48 кв. м, Квартира под Ваш ремонт. Очень удобная инфраструктура комплекса, конечная остановка наземного транспорта 3 мин, до метро 15 мин пешком, рядом магазины, супермаркеты, торговый центр, садики, школы, тренажерный зал-все рядом. В непосредственной близости расположен Харьковский лесопарк, дом в экологическом месте. Территория благоустроена. Возможна продажа через программу еОселя. Все вопросы по телефону. Квартиры, Продажа квартир, Продажа квартир-Харьковская область, Продажа квартир-Алексеевка Адрес Алексеевка, Харьковская область. ivan f. Объявление от Бизнес. Вид объекта Новостройка, Возможность обмена, Название ЖК Победы 2, Этаж 3, Этажность 9, Общая площадь 48 кв. м, Площадь кухни 15 кв. м, Тип стен Кирпичный, Количество комнат 1 комната, Планировка Свободная планировка, Санузел Смежный, Отопление Централизованное, Ремонт Под чистовую отделку. ID(к67!61, 10624). procpars. Тел Вн: a1 - 08.07.2025, Кор(вручную): a1 - 08.07.2025 Вн: a1 - 08.07.2025, Кор(вручную): s10 - 08.07.2025 Вн: a1 - 08.07.2025, Кор(вручную): 46004 - 01.09.2025 Вн: a1 - 08.07.2025, Кор(вручную): 46004 - 01.09.2025 Вн: a1 - 08.07.2025, Кор(вручную): s23 - 01.12.2025 Подробнее об этом объекте на сайте 20.estate
ID 453305653 | 0
Опубликовано: 08.07.2025
На карте:
Похожие объявления
Найдено 48 похожих объявления
