Агенство недвижимости "Аверс"

Контактный телефон:

098-567-64-99

4 745 301 грн. / 110 000 $

ID 453310878
Фото 0 из 10
№ Объекта в базе: 453310878
Тип квартиры: Изолированная
Количество комнат: 3
Район: Алексеевка
Ориентир: ЖК
Улица: ЖК Архитекторов Домостроительная ул.
Этаж: 6
Этажность: 9
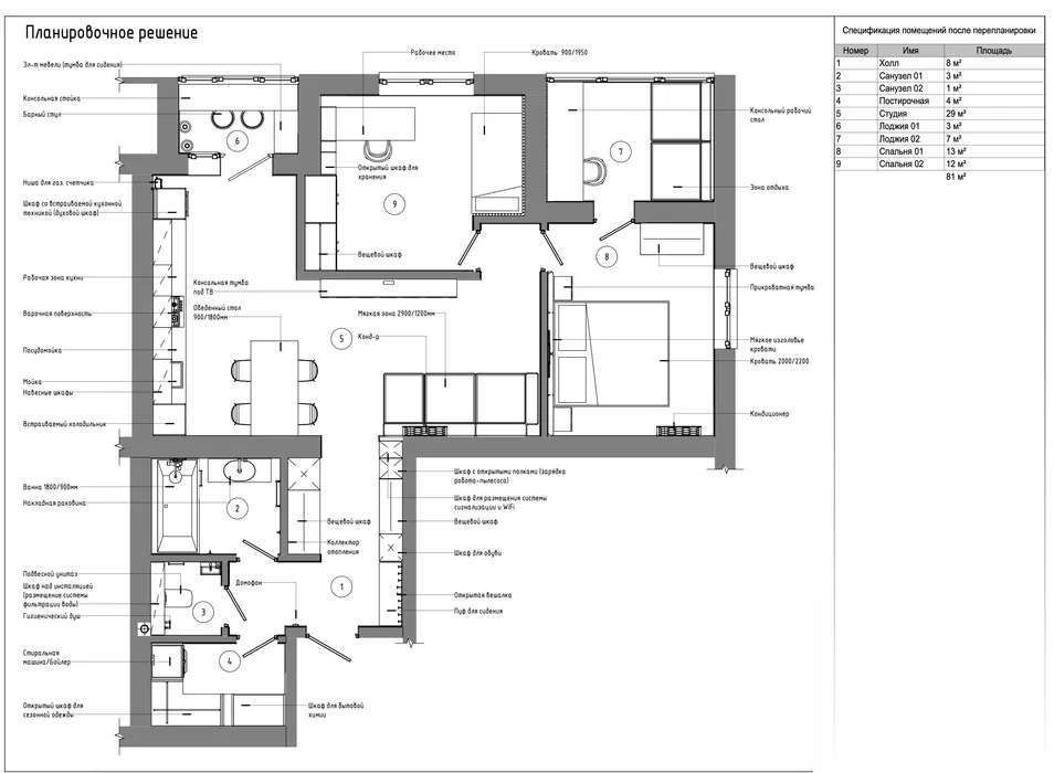
Общая площадь: 81 м2
Жилая площадь: не указано м2
Площадь кухни: не указано м2
Схема: Раздельные
Материал: Кирпич
Санузел: Совмещенный
Телефон: нет
Балкон: 1 балкон застеклен
Состояние: Жилое
Описание:
ЖК Дата объявления: 2, обновлено: 2, 3 к, Харьков, Алексеевка, ул. Домостроительная 7. Продам 3-х кім. квартиру, по вул. Домобудівельна, 7, ЖК Архітекторів Неспішно продам свою 3-х кім. квартиру на Олексіївці в ЖК "Архітекторів", вул. Домобудівельна, 7. 6-й поверх 9-ти поверхового цегляного будинку. Загальна площа 81 кв.м. Не агентство, продаж від власника. Сучасний свіжий ремонт, робився повністю для себе з екологічних і якісних матеріалів. Є фото всіх етапів. Квартира повністю готова для проживання. Вся техніка нова і входить в ціну. Стіни: цегляні включно з міжкімнатними перегородками. Чистове оздоблення шпатльоване скловолокно. Пофарбовані білою фарбою Flutex. Підлога: в один рівень по всій квартирі, кварцвініл під дерево, з фаскою. Стеля: дитяча, кабінет і спальня - подвійний гіпсокартон. Решта квартири - натяжна стеля. Колір білий матовий. Шумоізоляція стелі у всіх кімнатах. Двері: Secret Doors прихованого монтажу (без наличників), з якісною фурнітурою. Електрика: централізовний щиток з керуванням освітлення і споживачів. Якісні автоматами Schneider. Реле напруги з затримкою увімкнення. Опалення і вентиляція: 2 кондиціонери Cooper&Hunter в спальні і кухні-вітальні, 7 зон теплої підлоги з керуванням через застосунок і цифрові термостати. Сталеві батареї з можливістю встановлення термостату. Окреме підключення кожної батареї з можливістю централізованого перекриття. Вентиляція з таймером в туалеті і ванній. Інтернет: Maxnet. Виводи для провідного підключення у вітальні, дитячій і кабінеті. Опис кімнат. Передпокій: Дві великі вбудовані шафи, вішак з м'яким пуфом для взуття. Цифровий домофон. Тепла підлога. Пральня-гардеробна: Вбудовані меблі. Вентиляція. Тепла підлога. Бойлер на 100л. Окремі пральна і сушильні машини Bosch. Туалет: вбудовані меблі для зберігання, унітаз Grohe, гігієнічний душ, рукомийник зі змішувачем Grohe, тепла підлога. Ванна: кварилова ванна villeroy and boch 180см. Змішувачі Grohe. Електрична сушарка для рушників. Тепла підлога. Кухня-гостинна: вбудована кухня з посудомийкою, індукційною плитою, вбудованою мікрохвильовкою. Окремостоячий інверторний холодильник Samsung. Тепла підлога. Зона для відпочинку з кутовим диваном. Телевізор LG OLED 65 дюймів. Кухонний стіл зі стільцями. Лоджія: тепла підлога, шведська стінка. Дитяча: чистове оздоблення як і у всій квартирі. Стіл і крісло IKEA. Спальня: ліжко із зоною зберігання, безпружинний матрас, прикроватні тумби і комод Red and White. Телевізор 42 дюйми LG. Кабінет: Стіл і крісло IKEA. Розкладний диван. Тепла підлога. Лічильники на все, включно з опаленням. Фільтри грубої і тонкої очистки на воду. Бездротова Сигналізація AJAX з датчиками на всі вікна і вхідні двері, з датчиками протікання, дистанційним перекриттям води, керуванням світла і бойлера. Відеоспостереження в під'їзді і на вході в будинок. У пішій доступності знаходиться станція метро "Перемога". Неподалік розташована кілька великих супермаркетів Рост, Клас, АТБ. В дворі є дитячий майданчик, парковка, спортзал. Забудовник "Житлобуд-1. Будинок зданий та заселений. Показ тільки реальним клієнтам. Посередників прохання не турбувати. 110 000 $ Дмитро Харків, Шевченківський Харківська область Вн: a1 - 08.09.2025, Кор(вручную): a1 - 08.09.2025 Вн: a1 - 08.09.2025, Кор(вручную): s10 - 08.09.2025 АВТООТВЕТЧИК Вн: a1 - 08.09.2025, Кор(вручную): 48001 - 09.10.2025 Вн: a1 - 08.09.2025, Кор(вручную): s23 - 25.11.2025 Подробнее об этом объекте на сайте 20.estate

ID 453310878 | 0

Опубликовано: 08.09.2025

На карте:

Похожие объявления

Найдено 1 похожих объявления