Агенство недвижимости "Аверс"
Контактный телефон:
098-567-64-99
1 412 773 грн. / 33 000 $
ID 548270514








Фото 0 из 9
Цена:
1 412 773uah
(33 000 $)
Описание:
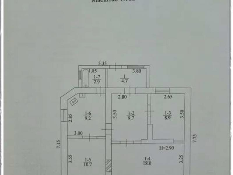
Дата объявления: 2, дом, Харьков, Индустриальный. Продам дом с участком в Харькове Продам целый дом в Харькове, стены кирпич, 3 комнаты + кухня. Высокие потолки 2.8м. Участок 6 соток. Свободен. 33 000 $ Харківська область, Харків, Індустріальний Den Вн: a1 - 21.08.2024, Кор(вручную): a1 - 21.08.2024 Вн: a1 - 21.08.2024, Кор(вручную): s10 - 05.06.2025 Подробнее об этом объекте на сайте 20.estate
ID 548270514 | 3
Опубликовано: 21.08.2024
На карте:
Похожие объявления
Найдено 82 похожих объявления
