Агенство недвижимости "Аверс"
Контактный телефон:
098-567-64-99
3 451 128 грн. / 80 000 $
ID 453312280







Фото 0 из 8
Цена:
3 451 128uah
(80 000 $)
Описание:
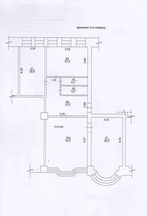
Дата объявления: 2, обновлено: 2, 3 к, Харьков, Центр, пл. Павловская 10. Продаж квартири в самом серці Харкова - Павлівська площа 10 Продаж квартири в самому серці Харкова — Павлівська площа, 10 Площа: 132 м² Поверх: 2 з 6 Стелі: 4 метри — простір і світло Технологія будівництва: монолітно-каркасна, будинок зведений на замовлення готелю «Асторія» та Купецького банку Локація: 2 хвилини до метро, поруч сквер Стрілка, ТРЦ «Нікольський», кафе, магазини, школи Під’їзд: охоронюваний, чистий, фото додаються Ціна: $80 000 80 000 $ Диана Харків, Київський Харківська область Вн: a1 - 06.10.2025, Кор(вручную): a1 - 06.10.2025 Подробнее об этом объекте на сайте 20.estate
ID 453312280 | 0
Опубликовано: 06.10.2025
На карте:
Похожие объявления
Найдено 16 похожих объявления
