Агенство недвижимости "Аверс"
Контактный телефон:
098-567-64-99
642 170 грн. / 15 000 $
ID 453315744




Фото 0 из 5
Цена:
642 170uah
(15 000 $)
Описание:
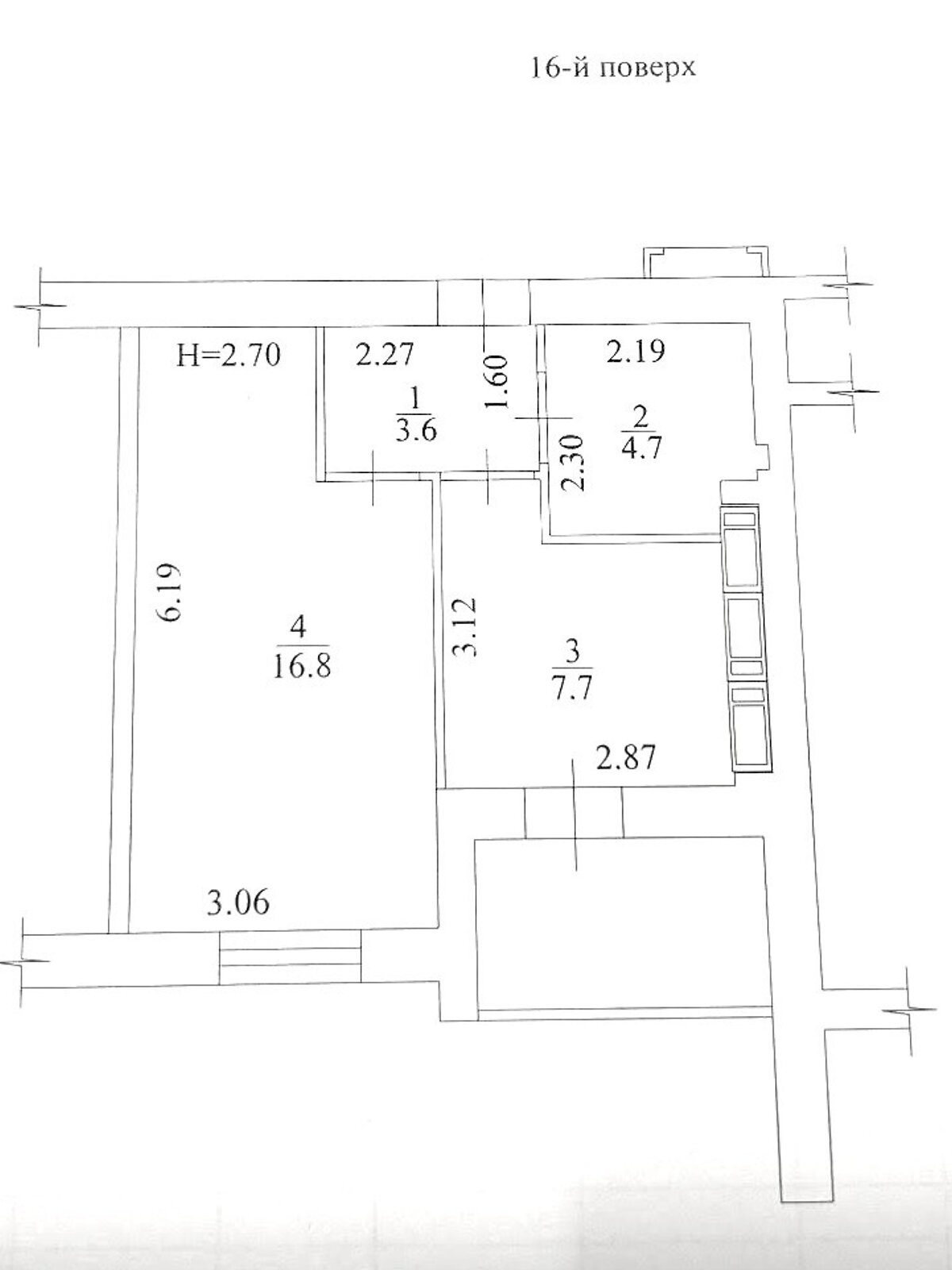
ЖК #продажа Продам СВОЮ !!!!!ВИДОВУ!!!! 1к квартиру 37, 2 м² в новом ЖК «Гідропарк» Дом зданий, присвоенный адрес ул. Борткевича 11. О квартире: Квартира на 16-м этаже с очень красивым видом. Из ваших окон потрясающий панорамный вид на реку, лес и город, а не на двор, «окна в окна» или на проезжую часть, что большая редкость для жителей мегаполиса. Раздельное планирование с отдельной кухней (не студия). По желанию можно сделать большую студию. Состояние квартиры: Строительное состояние Выполнена горизонтальная разводка отопления, установлено 2 радиатора. Энергосберегающие МП-окна с трехкамерным стеклопакетом. Металлическая входная дверь. Дом кирпичный, утепленный, в подъезде электронный доступ (брелок / приложение). Работают 2 лифта пассажирский и грузовой. Территория и район: Озелененная территория, благоустройство: клумбы, асфальтированные дорожки, парковка, детская и спортивная площадки. Рядом Журавлевский гидропарк, живописное место для прогулок и отдыха. Развитая инфраструктура: Остановки транспорта рядом (трамваи и автобусы) До метро Киевская или Салтовская (бывшая Героев Праци) 10 минут. Рядом Новая почта, аптека, банк, школа, детский сад, магазины, рынок, ТЦ, поликлиника, кафе, рестораны. Идеальный вариант для жизни или инвестиции под аренду! Ключи на руках, задаток беру, могу подъехать показать! Whatsup, Viber, Telegram Вн: a7 - 06.11.2025, Кор(вручную): a7 - 06.11.2025 Вн: a7 - 06.11.2025, Кор(вручную): s10 - 07.11.2025 Подробнее об этом объекте на сайте 20.estate
ID 453315744 | 4
Опубликовано: 06.11.2025
На карте:
Похожие объявления
Найдено 74 похожих объявления
