Агенство недвижимости "Аверс"
Контактный телефон:
098-567-64-99
1 423 590 грн. / 33 000 $
ID 453317684



Фото 0 из 4
Цена:
1 423 590uah
(33 000 $)
Описание:
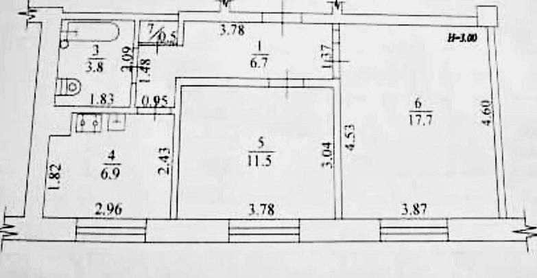
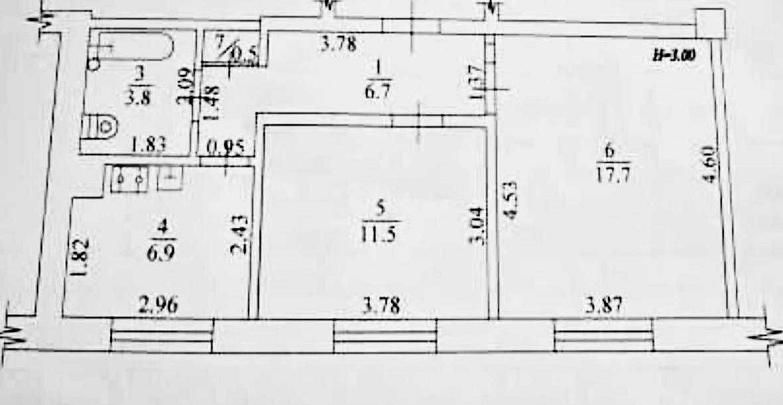
Центр. Супер расположение. 2к. Квартира, ЖБ, Данилевского. Цена 33 000 . Количество комнат 2 комн. Общая площадь 47 кв. м. Площадь кухни 7 кв. м. Этаж 1. Этажность 5. Продам 2-х ком. квартиру. От собственника. Без комиссии. Харьков Центр, Госпром, ул. Данилевского 32. Тихий идеальный центр 7 минут пешком до мотро Научная и Держпром. Окна на школу, 100 метров до школы 105 Сталинка, 15 этаж, Кирпичный дом Железобетонные перекрытия. Может подойти под нежилой фонд или офис. Потолок 4 метра. Огромные окна, Светлая солнечная сторона. 47м2, 2 комнаты кухня Ванная кладовка. Идеальная планировка.---------Продам 2-х кім. квартиру. Від власника. Без комісії. Харків Центр, Держпром, вул. Данилевського. Тихий ідеальний центр 7 хвилин пішки до мотро Наукова та Держпром. Вікна на школу, 100 метрів до школи 105 Сталінка, 15 поверх, Цегляний будинок Залізобетонні перекриття. Може підійти під нежитловий фонд чи офіс. Стеля 4 метри. Великі вікна, Світла сонячна сторона. 47м2, 2 кімнати кухня Ванна комора. Ідеальне планування. Квартиры, Продажа квартир, Продажа квартир-Харьковская область, Продажа квартир-Харьков, Продажа квартир-Шевченковский Адрес Харьков, Шевченковский, Харьковская область. Алексей Т. Объявление от Бизнес. Вид объекта Вторичка, Без комиссии, Готов сотрудничать с риэлторами, Этаж 1, Этажность 5, Общая площадь 47 кв. м, Площадь кухни 7 кв. м, Количество комнат 2 комнаты. ID(к89!73, 99762). procpars. Тел Вн: a1 - 08.12.2025, Кор(вручную): a1 - 08.12.2025 Вн: a1 - 08.12.2025, Кор(вручную): s10 - 08.12.2025 Подробнее об этом объекте на сайте 20.estate
ID 453317684 | 0
Опубликовано: 08.12.2025
На карте:
Похожие объявления
Найдено 6 похожих объявления
