Агенство недвижимости "Аверс"
Контактный телефон:
098-567-64-99
194 126 грн. / 4 500 $
ID 453317848



Фото 0 из 4
Цена:
194 126uah
(4 500 $)
Описание:
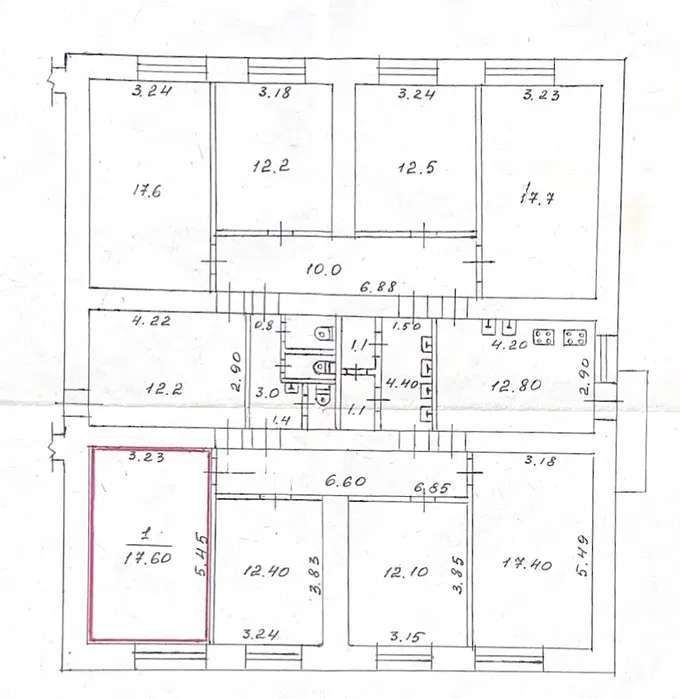
Дата объявления: 2, обновлено: 2, гостинка, Харьков, Залютино. 4500 у.е. 1-к гостинка на Залютино под Ваш ремонт. Собственник. Гостинка 17,6 квадратных метра жилая общая 25,7 под Ваш ремонт. Окно новое качественное, а так же входные двери новые. Цена обсуждается. 4 500 $ Договірна Евгений Харків, Холодногірський Харківська область Вн: a1 - 09.12.2025, Кор(вручную): a1 - 09.12.2025 Подробнее об этом объекте на сайте 20.estate
ID 453317848 | 0
Опубликовано: 09.12.2025
На карте:
Похожие объявления
Найдено 7 похожих объявления
