Агенство недвижимости "Аверс"
Контактный телефон:
098-567-64-99
9 059 211 грн. / 210 000 $
ID 453318547








Фото 0 из 9
Цена:
9 059 211uah
(210 000 $)
Описание:
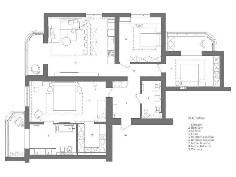
Дата объявления: 2, 4 к, Харьков, Северная Салтовка, ул. Яны Красной 11а. Продаж 4к квартири 150 кв. м на вул. Яни Червоної 11А • ID 4 Продам 4-х кімнатну квартиру на Салтівці по вул Джерельна 11 А Загальна площа 150 кв м ТРИ спальні кімнати ДВА санвузли Дизайн ремонту, та його якість відображені на фото. Всі меблі та техника входять у вартість . 2 телевизора, пральна машина, посудомиєчна машина, вмонтований холодильник, вминтована морозильна камера , 4 кондиционери. Тепла підлога у прихожій кімнаті , санвузлах та робочої зони кухні. Всі будівельні матеріали а також матеріали з яких були замовлені та виготовлені мебля - дуже високої якості відомих виробників. Будинок зданий у 2018 році . У вартість входить кладова кімната расташована на поверху, яка має окремий вхід. Також у вартість входить гараж на одну автівку, який знаходиться у ГК "Дружба" по вул Бучми. Гараж по довжені - 6 м, по ширині -2, 90 м. по висоті - 2, 60 м. Встановлені автоматичні ворота, (ролет), Висота воріт 2, 10 м ширина 2, 40 м. Заведено єлектропостачання, є погреб. 210000 $ Дмитрий Петрова Вн: a1 - 30.12.2025, Кор(вручную): a1 - 30.12.2025 Подробнее об этом объекте на сайте 20.estate
ID 453318547 | 0
Опубликовано: 30.12.2025
На карте:
Похожие объявления
Найдено 1 похожих объявления
Продажа Изолированная 4-комнатная квартира, Северная Салтовка
150 м2
