Агенство недвижимости "Аверс"
Контактный телефон:
098-567-64-99
6 421 695 грн. / 150 000 $
ID 548279488









Фото 0 из 10
Цена:
6 421 695uah
(150 000 $)
Описание:
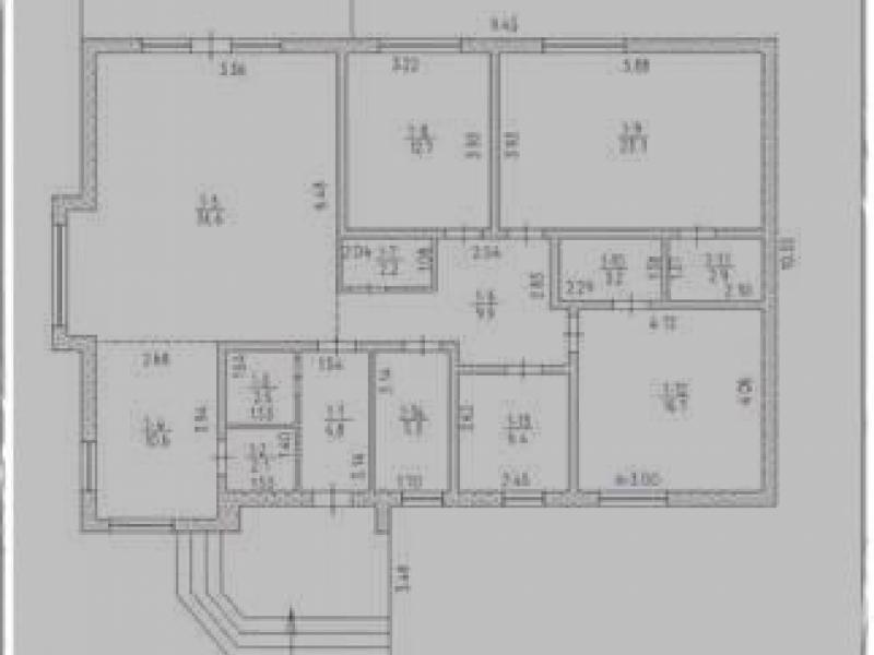
Дата объявления: 2, обновлено: 2, дом, Харьков, Большая Даниловка. Дом большая даниловка,салтовка. Новый дом под отделку, 140 кв/м введен в эксплуатацию, участок 15 соток, гараж 56кв/м, скважина, септик 18 кубов, свет 20квт, сделана вся электрика, разведена вода и канализация, утеплен мин.ватой 10см стены ,20см потолок,стены газоблок 30см. 150 000 $ Харківська область, Харків, Салтівський виталий Вн: a1 - 19.05.2025, Кор(вручную): a1 - 19.05.2025 Подробнее об этом объекте на сайте 20.estate
ID 548279488 | 3
Опубликовано: 19.05.2025
На карте:
Похожие объявления
Найдено 65 похожих объявления
