Агенство недвижимости "Аверс"
Контактный телефон:
098-567-64-99
6 421 695 грн. / 150 000 $
ID 548285885


Фото 0 из 3
Цена:
6 421 695uah
(150 000 $)
Описание:
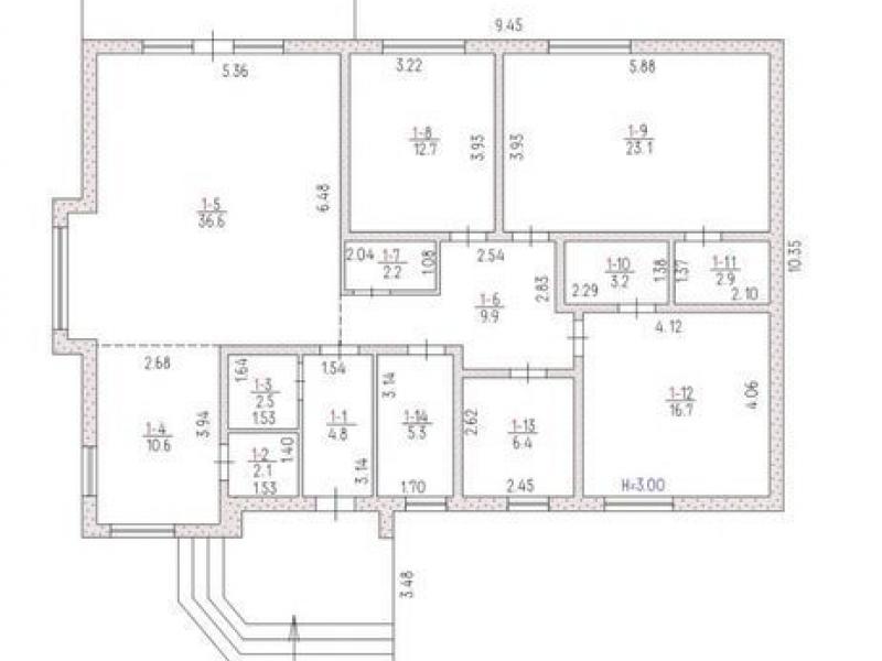
(НОМЕР PMC)-Дом большая даниловка, салтовка. Цена 150 000 . Количество комнат 4 комн. Общая площадь 140 кв. м. Этажность 1. Площадь участка 15 соток. Новый дом под отделку, 140 квм введен в эксплуатацию, участок 15 соток, гараж 56квм, скважина, септик 18 кубов, свет 20квт, сделана вся электрика, разведена вода и канализация, утеплен мин. ватой 10см стены, 20см потолок, стены газоблок 30см. Дома, Продажа домов, Продажа домов-Харьковская область, Продажа домов-Харьков, Продажа домов-Салтовский Адрес Харьков, Салтовский, Харьковская область. виталий. Объявление от Частного лица. Этажность 1, Общая площадь 140 кв. м, Количество комнат 4, Площадь участка 15 соток, Тип дома Коттедж, Тип стен Газоблок, Внешнее утепление стен Минеральная вата, Тип кровли Битумная черепица, Санузел 2 и более, Отопление Индивидуальное электро, Ремонт После строителей, Коммуникации Электричество. ID(к80!41, 79805). procpars. Тел , Вн: a21 - 18.08.2025, Кор(вручную): a21 - 18.08.2025 Подробнее об этом объекте на сайте 20.estate
ID 548285885 | 0
Опубликовано: 18.08.2025
На карте:
Похожие объявления
Найдено 92 похожих объявления
